
過濾面積:18L/平方
處理能力:5~14m³/h
應用范圍:應用于化工生產,至今仍廣泛應用于化工、制藥、冶金、染料、食品、釀造、陶瓷以及環保等行業。
詳情致電0571-86391666
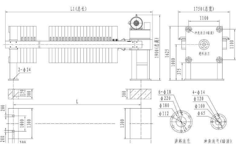
液壓廂式壓濾機簡介
液壓廂式壓濾機由交替排列的濾板和濾框構成一組濾室。濾板的表面有溝槽,其凸出部位用以支撐濾布。濾框和濾板的邊角上有通孔,組裝后構成完整的通道,能通入懸浮液、洗滌水和引出濾液。板、框兩側各有把手支托在橫梁上,由壓緊裝置壓緊板、框。板、框之間的濾布起密封墊片的作用。由供料泵將懸浮液壓入濾室 在濾布上形成濾渣,直至充滿濾室。濾液穿過濾布并沿濾板溝槽流至板框邊角通道,集中排出。過濾完畢,可通入清洗滌水洗滌濾渣。洗滌后,有時還通入壓縮空氣,除去剩余的洗滌液。隨后打開壓濾機卸除濾渣,清洗濾布,重新壓緊板、框,開始下一工作循環。
工作原理
液壓廂式壓濾機全自動泥水分離,工業污水處理廂式壓濾機工作原理達到超過同類進口設備,達到耐酸堿腐蝕可達十年的效果。廂式壓濾機工作原理軸承座特有的全密封鑄鋼件,堅固、耐用,可保用六年,廂式壓濾機工作原理污水處理廢水處理污泥后形成濾餅排出。

組成部分
機架部分
機架部分是機器的主體,用以支撐過濾機構,連接其它部件。它主要由止推板、壓緊板、油缸體和主梁等部件組成。機器工作時,油缸體內的活塞推動壓緊板,將位于壓緊板與止推板之間的濾板、隔膜板、濾布壓緊,以保證帶有壓力的料漿在濾室內進行加壓過濾。
過濾部分
1.過濾部分是由按一定次序排列在主梁上的濾板、夾在濾板之間的濾布、隔膜濾板組成,濾板、濾布與隔膜濾板的相間排列,形成了若干個獨立的過濾單元──濾室過濾開始時,料漿在進料泵的推動下,經止推板上的進料口進入各濾室內,并借進料泵產生的壓力進行過濾。由于濾布的作用,使固體留在濾室內形成濾餅,濾液由水嘴 (明流)或出液閥(暗流)排出(水嘴規格見附表一)。若需洗滌濾餅,可由止推板上的洗滌口通入洗滌水,對濾餅進行洗滌;若需要較低含水率的濾餅,同樣可從洗滌口通入壓縮空氣,穿過濾餅層,以帶走濾餅中的部分水分(適用于Uk機型)。若從進氣口通入壓縮空氣或高壓液體,鼓動隔膜,對濾餅進行壓榨,可進一步降低濾餅的含水率
2.在壓濾機使用過程中,濾布起著關鍵的作用,其性能的好壞,選型的正確與否直接影響著過濾效果。所使用的濾布中,常見的是由合成纖維紡織而成,根據其材質的不同可分為滌綸、維綸、丙綸、錦綸等幾種。
3.除此之外,常用的過濾介質還包括棉紡布、無紡布、篩網、濾紙及微孔膜等,根據實際過濾要求而定。

產品優點
該機型的主要優點是進料時損耗少,過濾速度快,耐高溫及高壓,密封性能好,濾餅洗滌均勻,含水率低,且各濾室壓力均勻不易壞板,基本適用于所有的固液分離行業。
準備工作
1.操作人員須按規定穿戴防護用品,應扎好袖口,不準圍圍巾,女工發辮應挽在帽子里。
2.檢查電氣開關、電線、接地是否良好。
3.檢查零件是否完好和緊固情況,防護裝置是否正常的。
4.檢查濾布狀況,濾布不得折疊和破損。
5.檢查各關口接頭有否接錯,法蘭螺栓有否均勻旋緊,墊片有否墊好。
- 上一篇:沒有了
- 下一篇:廂式隔膜壓濾機











